Request a FREE Valuation

Instant Online

or

Book a Valuation

Woodthorpe Road, Ashford, Surrey,TW15
For Sale - £290,000 Leasehold

2 1 1

Key Features

  • Second Floor Flat
  • Two Bedrooms
  • Town Centre Location
  • No Onward Chain
  • Garage
  • Newly Fitted Kitchen & Bathroom

Description

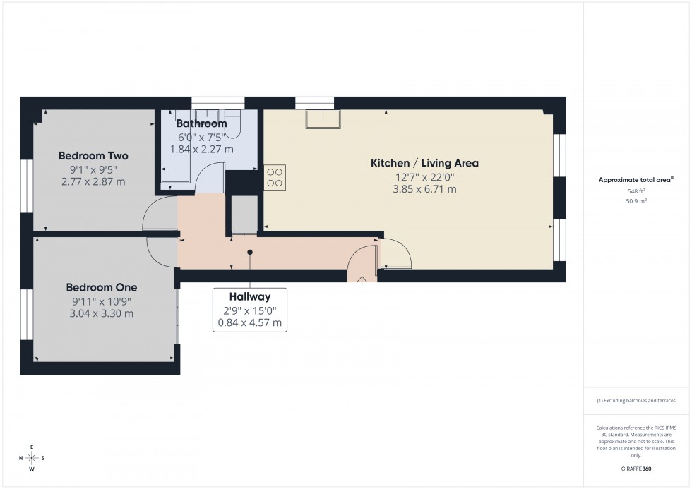
A fully refurbished two-bedroom second-floor flat, ideally located in the Town Centre, a short walk from Ashford Mainline Train Station, with excellent transport links into London Waterloo. Features include a brand new, fully fitted kitchen, complete with integrated appliances, including a dishwasher, washing machine, fridge, freezer, electric oven and an induction hob. The modern three-piece bathroom suite is also newly installed and includes a bath with an independent overhead rainfall shower. Additional benefits include new carpets, wood laminate flooring, double glazing, gas central heating, security entry phone system, communal gardens and a garage to the rear of the property. With No Onward Chain, this property would make an ideal purchase for first-time buyers, commuters, or investors alike. EPC Rating D. Spelthorne Borough Council, Council Tax Band C being £2,144.69 for 2025/26. Leasehold Information: We have been advised that there are approximately 152 years and 8 month unexpired on the current Lease. We are awaiting confirmation of Service/Maintenance/Ground Rent and any other related charges.

Additional Information

Council Tax Band: C
EPC: D
Remaining Lease: 152 yrs
Service Charge per annum: £1,985
Ground Rent per annum: Ask Agent

Floorplan for Ashford, Surrey, TW15
EPC Graph for Ashford, Surrey

Council Tax Band: C

Follow The Frost Partnership on Facebook Follow The Frost Partnership on Twitter