Request a FREE Valuation

Instant Online

or

Book a Valuation

Kings Road, High Wycombe, Buckinghamshire,HP11
Under Offer - £390,000

2 1 1

Key Features

  • Characterful Features
  • Diveway parking
  • Open plan living
  • Enclosed rear garden
  • Two bedrooms
  • NO ONWARD CHAIN

Description

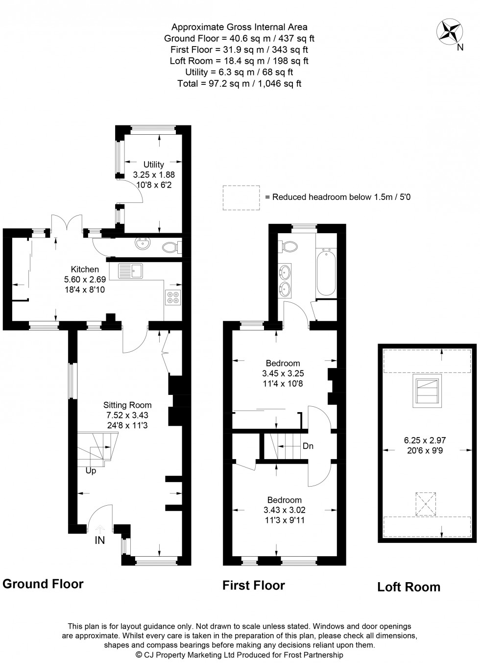
A very well presented two-bathroom end of terrace character cottage. The property has a modern interior but still retains some lovely character features. The accommodation is well proportioned with an open plan living room and dining area, leading through to a modern kitchen, downstairs cloakroom, utility and good-sized rear garden. Upstairs two double bedrooms, and main bathroom off the master bedroom. Also, a loft room, accessed via ladder from bedroom two. Outside the garden is fully enclosed with a fantastic patio and built in BBQ area. In addition, there is driveway parking for a couple of cars. Viewing is highly recommended.

Additional Information

Council Tax Band: C
EPC: D
Remaining Lease: Ask Agent
Service Charge per annum: Ask Agent
Ground Rent per annum: Ask Agent

Floorplan for High Wycombe, Buckinghamshire, HP11
EPC Graph for High Wycombe, Buckinghamshire

Council Tax Band: C

Follow The Frost Partnership on Facebook Follow The Frost Partnership on Twitter