Request a FREE Valuation

Instant Online

or

Book a Valuation

Stomp Road, Burnham,SL1
For Sale - £600,000 Freehold

4 2 1

Key Features

  • Semi detached period home
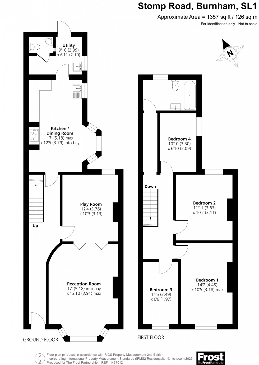
  • Over 1,350 sq ft of accommodation
  • Four bedrooms & two receptions
  • 17ft kitchen/dining room
  • Approx 90ft rear garden
  • Off street parking and side access

Description

A rarely available & beautifully presented, light-filled four-bedroom semi-detached period home, offering exceptionally spacious accommodation extending to over 1,350 sq ft — making it an ideal choice for a growing family. Set on an enviable plot, the property benefits from a generous 90ft rear garden, perfect for outdoor entertaining and family enjoyment. This beautiful home seamlessly blends modern living with charming period features, including high ceilings that enhance the sense of space throughout. The ground floor briefly comprises an inviting hallway, two elegant interconnecting reception rooms, and a superb 17ft kitchen/dining room featuring a lovely bay window. This space flows through to a practical utility room and a convenient downstairs cloakroom. Upstairs, the first floor hosts four well-proportioned bedrooms alongside an attractive family bathroom suite. Externally, the property offers off-street parking for one car and side access leading to the impressive rear garden. The outdoor space features a patio area nearest the house, a section laid with slate chippings and stepping stones leading to the side gate, and a large lawn bordered by mature shrubs and trees.

Additional Information

Council Tax Band: E
EPC: D

Floorplan for Burnham, Burnham, SL1
EPC Graph for Burnham

Council Tax Band: E

Follow The Frost Partnership on Facebook Follow The Frost Partnership on Twitter