Request a FREE Valuation

Instant Online

or

Book a Valuation

Cliveden Gages, Taplow,SL6
Under Offer - £695,000 Leasehold

3 1 2

Key Features

  • Stunning and contemporary ground floor apartment
  • Over 1600 Sq Ft of accommodation
  • Two/three double bedrooms
  • Two secure underground parking spaces
  • Set in the National Trust owned Cliveden Estate
  • Exclusively for those aged 55 and over

Description

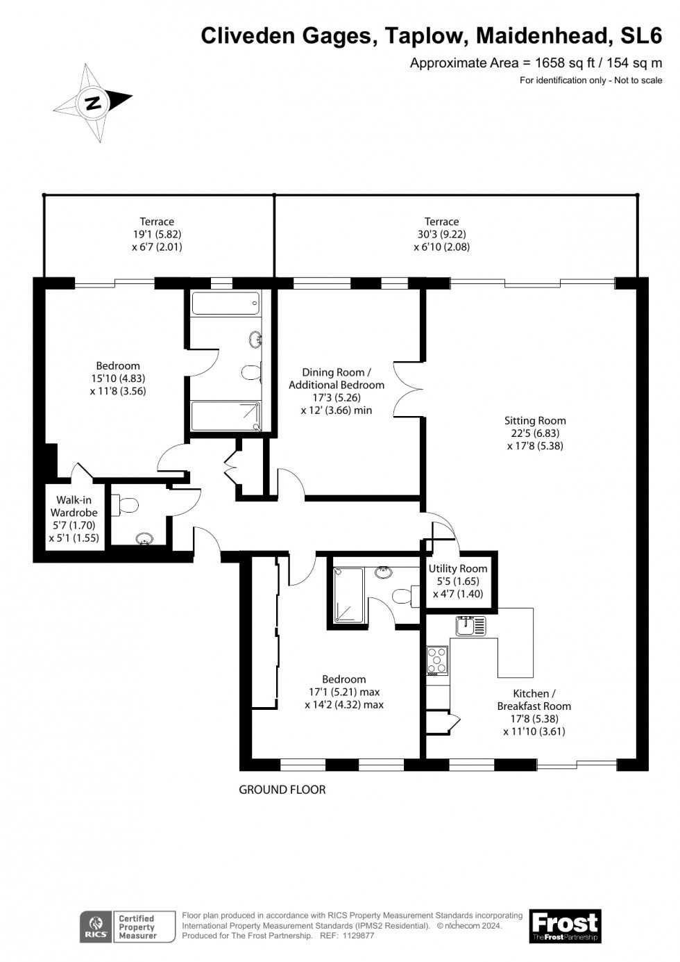
Nestling in mature woodland in the beautiful setting of the 376 acre, National Trust owned Cliveden Estate within this sustainable community exclusively for those aged 55 and over is this contemporary styled ground floor apartment boasting almost 1700 sq ft of accommodation. This stunning apartment boasts a versatile floorplan with slick and stylish interiors and also has an abundance of natural light with large windows and doors opening onto the outside space. The accommodation on offer comprises of entrance hallway that offers access to the incredibly spacious kitchen/living/sitting room, the principle bedroom enjoys a walk-in wardrobe as well as an elegant four-piece en-suite bathroom. Likewise, the impressive second bedroom has fitted wardrobes along one of the walls and enjoys an en-suite bathroom. There is also a spacious dining room that could also be used as an additional guest bedroom. Externally there are two private terraced areas, both overlooking the communal grounds to the rear. There are also two allocated underground parking spaces. There is also shared storage rooms. To live at Cliveden Village is to live close to nature, during Cliveden's opening hours residents have free and unrestricted access to its stunning range of woodland and riverside walks, gardens and spectacular vistas.

Additional Information

Council Tax Band: F
EPC: C
Remaining Lease: Ask Agent
Service Charge per annum: Ask Agent
Ground Rent per annum: Ask Agent

Floorplan for Taplow, Taplow, SL6
EPC Graph for Taplow, Buckinghamshire

Council Tax Band: F

Follow The Frost Partnership on Facebook Follow The Frost Partnership on Twitter