Request a FREE Valuation

Instant Online

or

Book a Valuation

Elms Road, Chalfont St. Peter, Gerrards Cross,SL9
For Sale - £925,000 Freehold

4 2 2

Key Features

  • Four Bedrooms
  • Two Bathrooms, one of which is ensuite
  • Fitted Kitchen/Breakfast room
  • Fully fitted Study
  • Garage and off road parking
  • South facing rear garden

Description

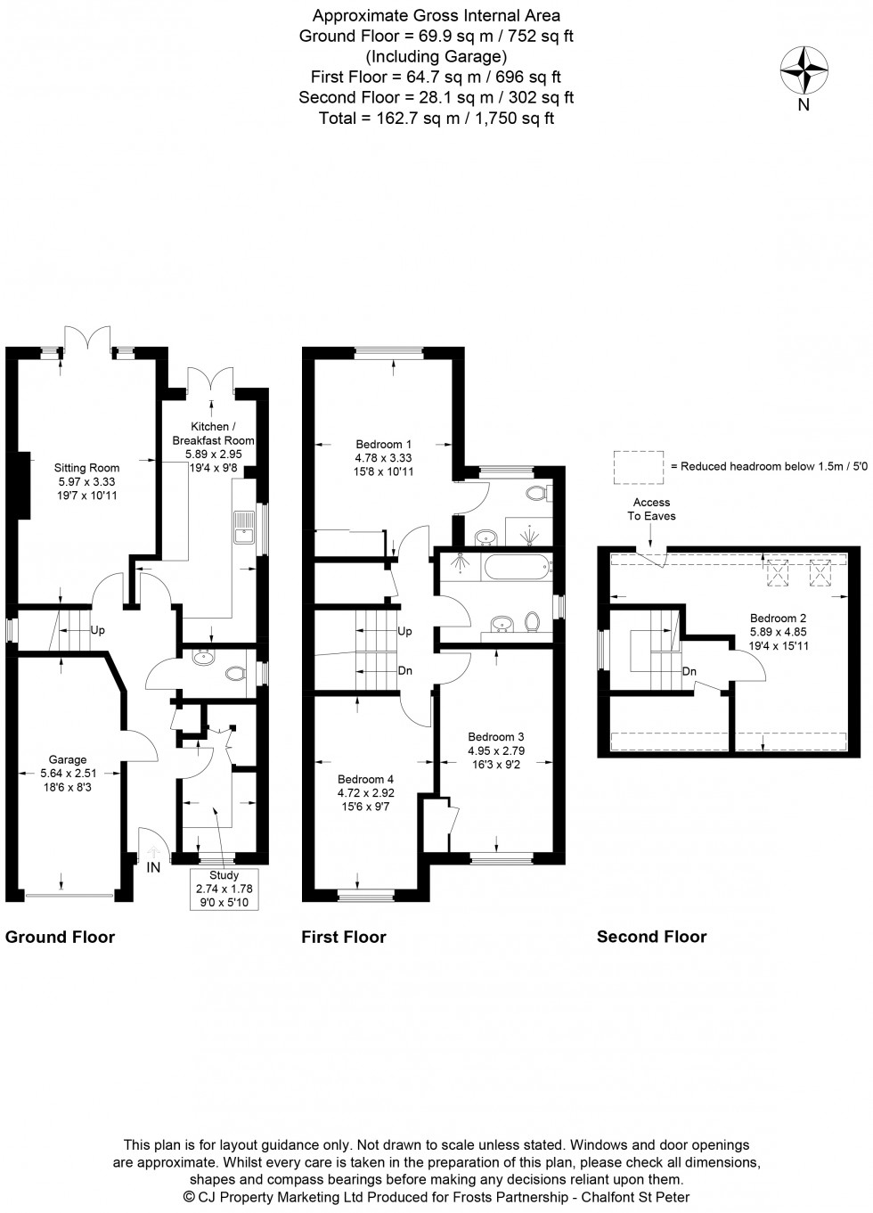
A beautifully presented detached family home constructed in 2013 by Aston Homes, offering well proportioned accommodation throughout and set within walking distance of the village centre. The accommodation is set over three floors and has on the ground floor an entrance hall which leads to a living room to the rear opening to the garden, a well appointed kitchen with integrated appliances and dining area, a study that has a fine range of fitted furniture and a cloakroom completes the accommodation on the ground floor. On the first floor there are three double bedrooms, two bathrooms, one being en-suite to the main bedroom and on the top floor a fourth bedroom. Outside the property has plenty of parking on a block paved driveway and also a single garage and to the rear, there is a level south facing garden.

Additional Information

Council Tax Band: G
EPC: C

Floorplan for Chalfont St. Peter, Gerrards Cross, SL9
EPC Graph for Chalfont St. Peter, Gerrards Cross, Buckinghamshire

Council Tax Band: G

Follow The Frost Partnership on Facebook Follow The Frost Partnership on Twitter