Request a FREE Valuation

Instant Online

or

Book a Valuation

The Drive, Feltham, Middlesex,TW14
Under Offer - £475,000 Freehold

3 1 1

Key Features

  • Freehold
  • Three Bedrooms
  • Potential to Extend
  • Off Street Parking
  • Close to local amenities
  • Walking Distance to Train Station

Description

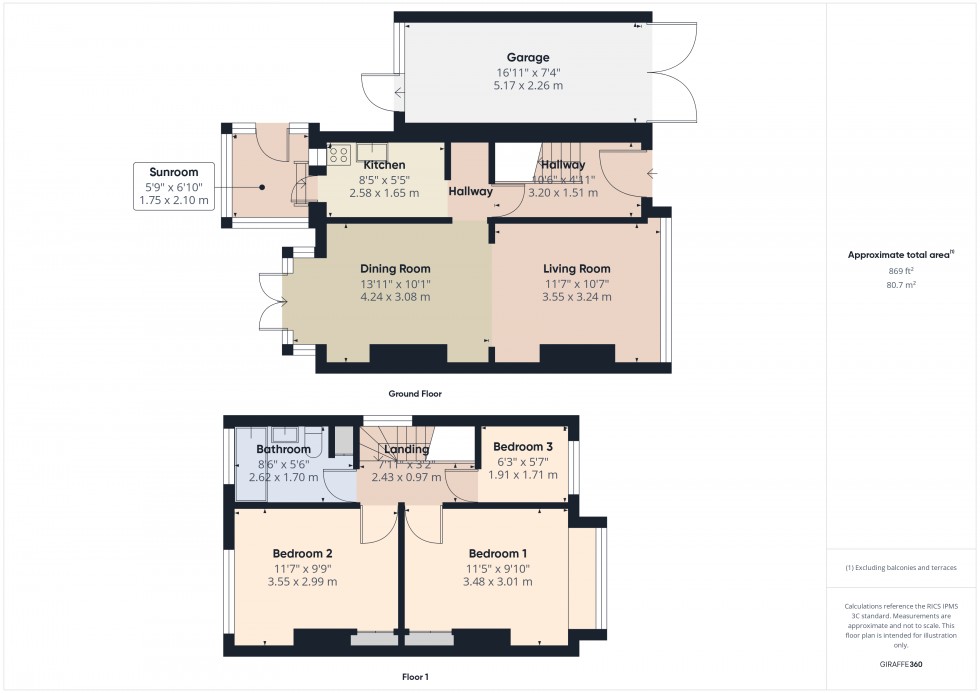
Presented to the market with no onward chain and in need of modernisation is this three-bedroom semi-detached family home. Offering excellent potential to extend ( subject to the relevant approvals) the property comprises an open plan lounge/diner , separate kitchen , family bathroom and three generous bedrooms . Further benefits include a garage , off street parking and a large garden. Situated in a highly sought after road and just a short walk from Feltham’s high street, mainline train station, and outstanding schools this property is sure to attract a lot of interest, and an early internal viewing is highly advised. EPC Rating D. Council Tax Band: Hounslow Borough Council, Council Tax Band D being £2,085.82 for 2025/26.

Additional Information

Council Tax Band: D
EPC: D

Floorplan for Feltham, Middlesex, TW14
EPC Graph for Feltham, Middlesex

Council Tax Band: D

Follow The Frost Partnership on Facebook Follow The Frost Partnership on Twitter