Request a FREE Valuation

Instant Online

or

Book a Valuation

Treadaway Hill, Loudwater, High Wycombe,HP10
To Let - £1,250 pcm + Fees May Apply

1 1

Key Features

  • MODERN / Ground Floor
  • ONE DOUBLE Bedroom
  • OPEN PLAN Kitchen /Diner
  • BOSCH Integrated Appliances
  • ONE ALLOCATED Parking space
  • AVAILABLE NOW / UNFURNISHED

Description

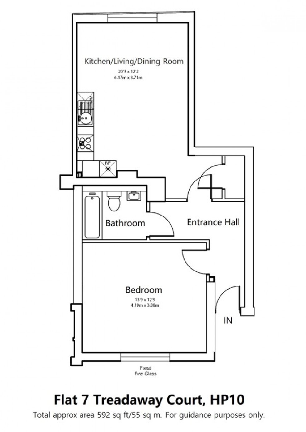
A fabulous and spacious, ONE Bedroom, GROUND FLOOR apartment with GAS Central Hating. Comprising entrance hall, cupboard for coats and shoes, bathroom and open plan kitchen/diner/living area. The property comes with an allocated PARKING space. The development is located opposite a pleasant park with stream and is a short walk to Tesco's and other retail outlets and David Lloyd Health Complex. There is easy access to Jct 3 of M40 and a short drive to High Wycombe and Beaconsfield towns, both with rail stations, with direct TRAINS into London. AVAILABLE NOW/ UNFURNISHED. Rent must be paid monthly in advance. Holding deposit is equal to one weeks rent £288.46. Security deposit is equal to five weeks rent £1,442.30

Additional Information

Council Tax Band: C
EPC: C

Floorplan for Loudwater, High Wycombe, HP10
EPC Graph for Loudwater, High Wycombe

Council Tax Band: C

Follow The Frost Partnership on Facebook Follow The Frost Partnership on Twitter