Request a FREE Valuation

Instant Online

or

Book a Valuation

River View, Flackwell Heath, High Wycombe,HP10
- £3,250 pcm + Fees May Apply

4 2 2

Key Features

  • STUNNING FOUR Bedroom DETACHED
  • FULLY REFURBISHED to High Spec
  • THREE Receptions, TWO Bathrooms
  • PARKING for up to Six Cars
  • ENCLOSED Rear Garden / NO PETS
  • AVAILABLE End of March / Flexible Furnishing

Description

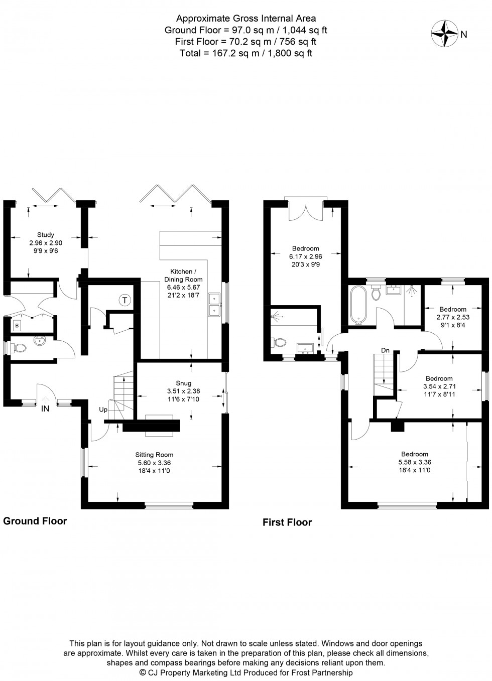
A fabulous FOUR bedroom, THREE reception detached house that has been recently extended and fully refurbished to a high specification, including hand built kitchen, new plumbing and electrics, resulting in a new build feel. The property offers a fantastic open plan kitchen/diner, separate lounge, snug/study, utility room and downstairs cloakroom. Upstairs are four double bedrooms, two bathrooms, one of which is an en-suite to the master. To the front there is parking for up to six cars and an enclosed garden to the rear. The property is in catchment for sought after schools primary and grammar schools. There is easy access to Jct 3 M40 and rail links into London. AVAILABLE End of March / Flexible Furnishing / Sorry NO PETS. Rent must be paid monthly in advance. Holding deposit is equal to one weeks rent £750.00. Security deposit is equal to five weeks rent £3,750.

Additional Information

Council Tax Band: E
EPC: C

Floorplan for Flackwell Heath, High Wycombe, HP10
EPC Graph for Flackwell Heath, High Wycombe

Council Tax Band: E

Follow The Frost Partnership on Facebook Follow The Frost Partnership on Twitter