Request a FREE Valuation

Instant Online

or

Book a Valuation

The Common, Flackwell Heath, High Wycombe,HP10
For Sale - £400,000 Freehold

2 2 1

Key Features

  • TWO Bedroom Cottage
  • TWO Receptions
  • MODERN Kitchen
  • CENTRAL Flackwell Heath
  • LONG Cottage Garden
  • NO ONWARD Chain

Description

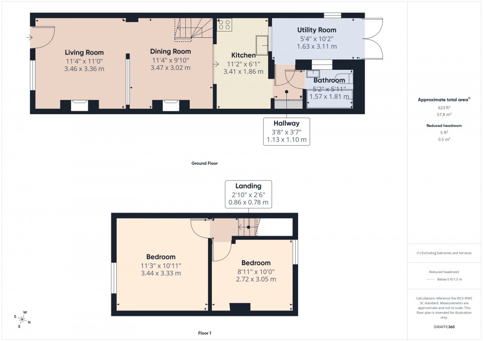
A lovely two bedroom CHARACATER COTTAGE situated in the centre of the village in the heart of the conservation area. You are greeted by a cosy living room with chimney for an open fire and a second reception room is currently used as a dining room and double office. This then leads into a modern open plan kitchen. Beyond the kitchen is a brick built utility room with doors opening onto the garden and a downstairs bathroom. Upstairs are two good sized double bedrooms. Outside to the rear is a long and pretty cottage style garden with a brick built shed at the bottom of the garden. To the front of the property is an attractive garden that could be converted to provide off street parking if desired. A fabulous first time buy or investment. OFFERED with NO ONWARD CHAIN.

Additional Information

Council Tax Band: E
EPC: D

Floorplan for Flackwell Heath, High Wycombe, HP10
EPC Graph for Flackwell Heath, High Wycombe, Buckinghamshire

Council Tax Band: E

Follow The Frost Partnership on Facebook Follow The Frost Partnership on Twitter