Request a FREE Valuation

Instant Online

or

Book a Valuation

Freer Crescent, High Wycombe,HP13
Let Agreed - £1,350 pcm + Fees May Apply

2 1 1

Key Features

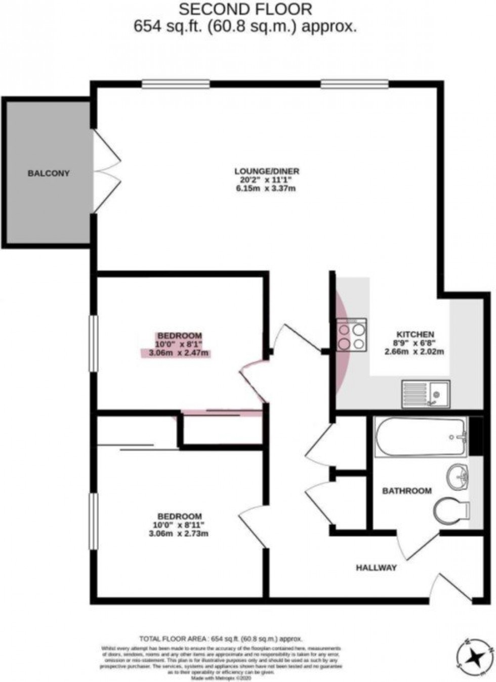
  • TWO Double Bedrooms on Second Floor
  • BALCONY and Communal GARDEN
  • PARKING Secure and ALLOCATED
  • MODERN Open Plan Living
  • CLOSE To Jct 3 M40 and Amenities
  • AVAILABLE NOW / Part or Unfurnished

Description

Fabulous second floor TWO double bedroom apartment, located in this popular development. ALLOCATED secure underground PARKING, visitor parking, BALCONY and close to amenities and Kingsmead PARK. The property offers open plan living, dining and kitchen area, two good sized double bedrooms, bathroom and there is plenty of storage within the property. It is within easy reach of Jct 3 of M40, main line links into London and close to a range of local shops, amenities and supermarkets. AVAILABLE NOW UNFURNISHED. Sorry NO PETS. Rent must be paid monthly in advance. Holding deposit is equal to one weeks rent £311.53 Security deposit is equal to five weeks rent £1,557.65

Additional Information

Council Tax Band: C
EPC: C

Floorplan for Freer Crescent, High Wycombe, HP13
EPC Graph for Freer Crescent, High Wycombe, Buckinghamshire

Council Tax Band: C

Follow The Frost Partnership on Facebook Follow The Frost Partnership on Twitter