Request a FREE Valuation

Instant Online

or

Book a Valuation

Park Lawn, Farnham Royal, Buckinghamshire,SL2
For Sale - £435,000 Share of Freehold

3 1 2

Key Features

  • Beautifully presented spacious apartment
  • 3 Bedrooms, 2 Bathrooms
  • Outstanding Views over Stoke Park
  • Double Glazed, Gas Fired Central Heating
  • Private Garage and Parking
  • Share of freehold

Description

No.35 Park Lawn - A Peaceful Retreat with Exceptional Views. Approached via impressive electric entrance gates, this first?floor apartment combines elegance, comfort, and convenience. With neutral décor and recently fitted carpets, the home is ready to move into and offers a lifestyle defined by space, light, and tranquillity. The estate enjoys a wonderfully quiet position, yet remains within easy reach of Burnham Beeches Nature Reserve and excellent road and rail connections, including the Elizabeth Line and Chiltern Rail services.

Additional Information

Council Tax Band: F
EPC: C
Remaining Lease: 110 yrs
Service Charge per annum: Ask Agent
Ground Rent per annum: Ask Agent

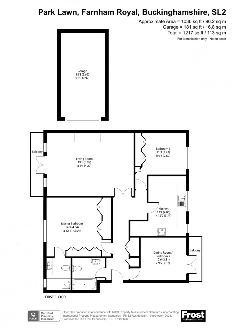
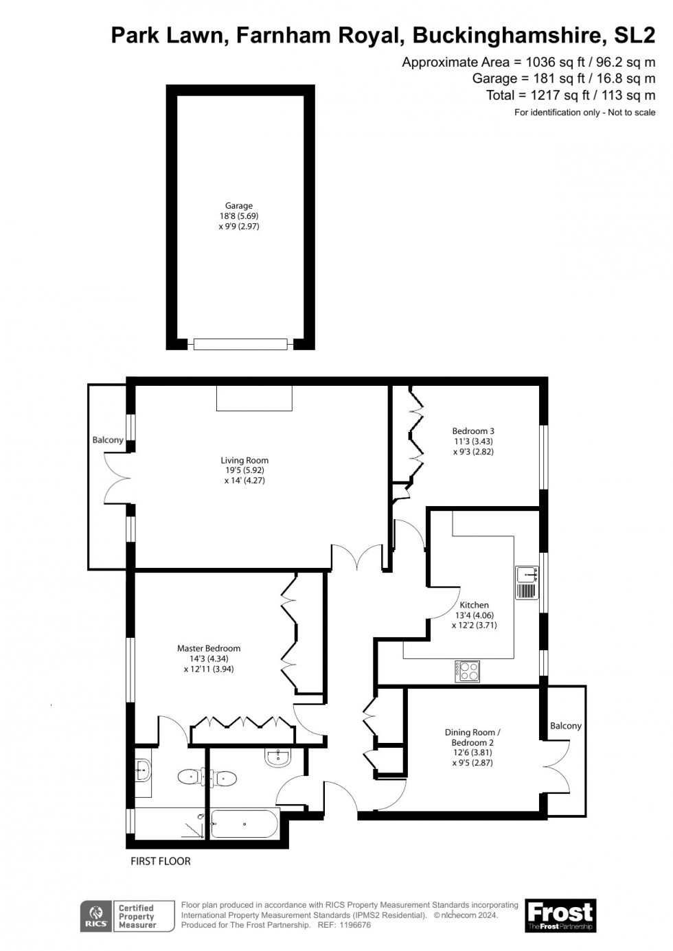
Floorplan for Farnham Royal, Buckinghamshire, SL2
EPC Graph for Farnham Royal, Buckinghamshire

Council Tax Band: F

Follow The Frost Partnership on Facebook Follow The Frost Partnership on Twitter